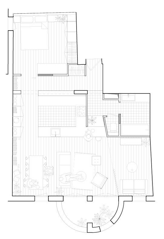
PALMERO
Renovation d’un appartement pour un jeune couple
Lieu : Passage du Buisson Saint-Louis, Paris X
Status : Projet
Client : Privé
Budget : n/c
Année : 2021
Area : 66m2
Projet réalisé avec Olivier Lekien Architecte
---
Renovation of an appartment for a young couple
Location : Passage du Buisson Saint-Louis, Paris X
Status : Study
Client : Private
Budget : n/c
Year : 2021
Area : 66m2
Project with Olivier Lekien Architect

